Listing provided courtesy of Mary Gerges of BHHS California Properties. Last updated 2025-10-25 08:15:42.000000. Listing information © 2025 CRMLS.
Asking Price: $809,990
302 Marlee, Camarillo CA 93012
Community: VC45 - Mission Oaks
This Townhouse property was built in 2020 and is priced at $809,990. Please see the additional details below.
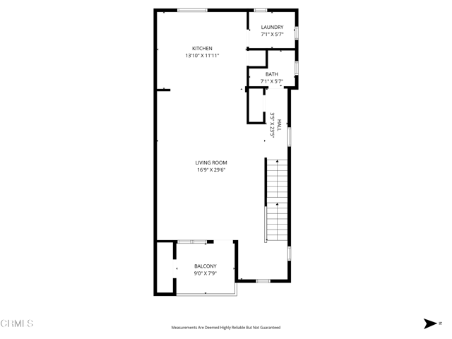
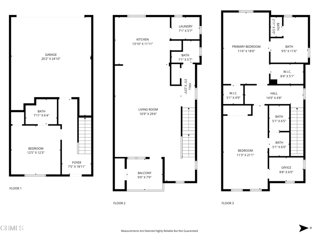
Stunning Park west Townhome built in 2020. Beatifully upgraded on a desirable corner lot with mountain views.This home features a bedroom and full bath on the first floor.Second floor offers an upgraded island kitchen with quartz countertop ,white shaker cabinets,Stainless steel appliances.Walk into open and spacious living room high ceiling with media niche, recessed lighting, and luxury vinyl plank flooring.Spacious primary bedroom with walk-in closet.All bathrooms have upgraded tile flooring and quartz countertops.This integrated smart home is equipped with a ring doorbell, nest thermostat, automatic faucets and moreDedicated laundry room, tank-less water heater and two car garage.Conveniently located steps away from community amenities including BBQ areas, pool and children's play ground and patio with fire place.Highly desirable location next to park, school, bike trail and shopping center.























































